Design of Reinforced Concrete Structures

An essential section of the project for the construction of any reinforced concrete building or structure is the RC section – Reinforced Concrete Structures. The RC section is developed based on the Ukrainian standard DBN B.2.6-98:2009 “Concrete and Reinforced Concrete Structures”. 
The RC project can be developed for an entire building or structure, or for its separate parts, such as: 
- Plinth panels 
- Foundation slabs
 - Floor slabs
 - Columns
 - Beams
 - Prefabricated or monolithic slabs
 - Stair flights and landings
 - Retaining walls

The most common concrete grades used in modern projects are: B7.5, B10, B15, B20, B25, B30. Special attention should also be paid to other characteristics of concrete such as frost resistance (F), water resistance (W), and abrasion resistance (G), depending on the purpose of the building and the construction region.

What does the RC section include?

General data
Excavation plan (in DWG and PDF)
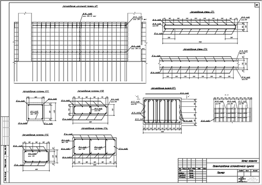
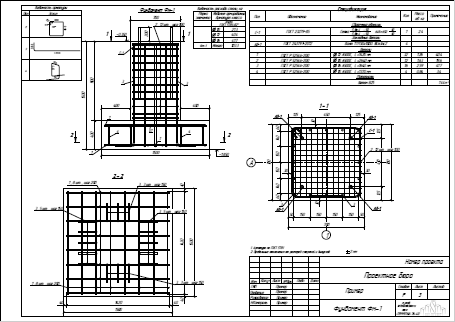
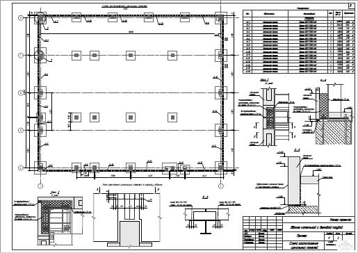
Formwork and reinforcement drawings for reinforced concrete elements (in DWG and PDF)
Specifications (in Microsoft Excel and PDF) 
3D model (optional)

Cost of RC Section Development

Object TypeDesign DocumentationWorking DocumentationDesign and Working Documentation
Warehouse Design60 UAH/sq.m.100 UAH/sq.m.150 UAH/sq.m.
Design of Industrial, Administrative, Commercial-Office, Buildings with More Than Two Floors 70 UAH/sq.m.120 UAH/sq.m.180 UAH/sq.m.
Design of Industrial and manufacturing facilities 80 UAH/sq.m.140 UAH/sq.m.200 UAH/sq.m.
Low-rise Development Design (Cottage Settlements) 60 UAH/sq.m.135 UAH/sq.m.180 UAH/sq.m.

Examples of Drawings